- Tag billeder af kantsten og fortove inden byggestart!
- Sørg for altid at kommunikere til Byggelederen (ikke Uggerly, eller andre underlev.)
- Sørg for at inkludere en Allonge til kontrakten (Kræv hus-Nøgle under hele Byggeriet).
- Sørg for at udspecificere at det er et Enterprise byggeprojekt i jeres Allonge.
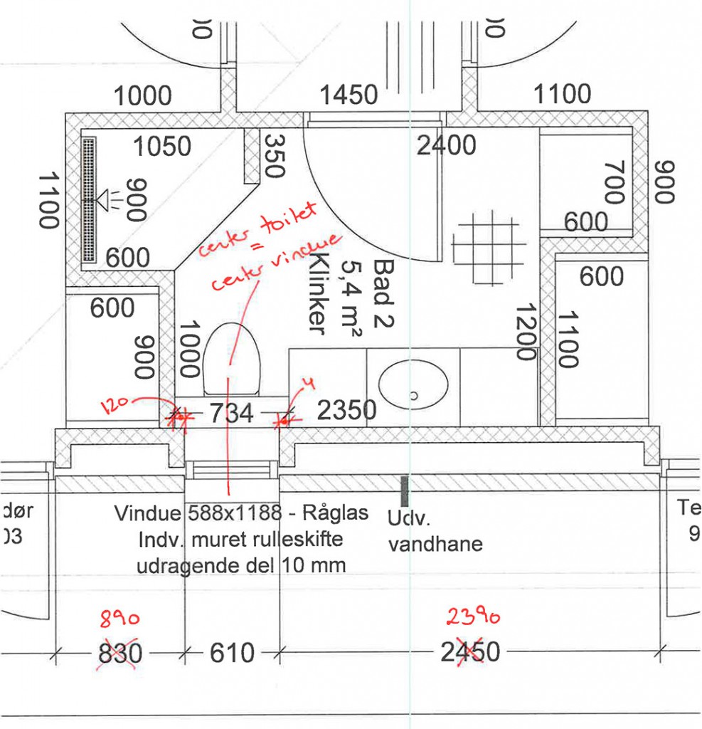
- Specificer alting på jeres EL-tegning skriv det med tekst på tegningen!
- Hold naboerne underrettet, giv dem bygge tidsplan, periode med larm etc.
- Sørg for at have minimum +200.000 kr luft i bygge budgettet. (Gerne mere).
- Undersøg hvad andre leverandører skal have for at køre jord væk – godt betale sig!
- Hvis muligt så bo på byggegrunden, det gør tingene meget lettere, tæt på naboerne!
- Snak med håndværkerne hver dag, bare 5min om morgenen giv dem evt dit mobil nr
- Dokumenter byggeriet i billeder, det koster ikke noget og så har du en Dok. tidslinie.
- Alt kan lade sig gøre (kr) ignorer “det kan ikke lade sig gøre på et typehus!”.
- Valmet tag er flot udefra, men meget upraktisk (Intet loftsrum! & dybe lyskasser).
- Valmet tag giver dog det fede ovenlys til himlen og ikke trætoppe udsigt.
- Vær opmærksom på at garagen leveres med ubehandlede betonvægge!
- Vær opmærksom på at træ gulv ikke lægges under skabe der leveres med huset!
Checklisten for Syns og skøn:
- Tagrender, fald og utætheder. Hjørner og samlinger.
- Filt samlinger på vægge og Malerens “helligdage” etc.
- Vinduer og døre kan åbne og lukke (Binder, Håndtag kan ikke lukkes helt ned).
- Karme revner og sprækker i vindues træ rammerne.
Egne leverancer
Følgende ting har vist sig at være uforholdsmæssigt dyre at få købt og monteret hos køkken- og husfirma, og vi har derfor valgt selv at tage bøvlet.
- Netværk trækkes selv i tomrør.
- Hvidevarer.
- Dobbelt Porten til garagen.
- Skabe soveværelse.
- Skydedører til Teknikrum og Soveværelser.
- Selv sørget for bortkørsel af overskudsjord.



























































































































































































































































































































































































































































































































































































































































































































































































































































































































































































































































































































































































































































































































































































































































































































































































































































































































































































































































































































































































































































































































































































































































































































































































































































































































































































































































































































































































































































































































































































































































































































